Përshkrimi i Pronës

Apartament 2+1 pĂ«r Shitje – Venatino 4 Residence, KamĂ«z

Ofrohet për shitje apartament 2+1 në një nga komplekset më të reja rezidenciale, Venatino 4 Residence, i pozicionuar në Kamëz.

📍 Vendndodhja: Venatino 4 Residence, KamĂ«z
🏱 Tipologjia: 2+1
🏗 Tipi: Apartament
🏠 Numri i Apartamentit: 36 D
⬆ Kati: I pestĂ« teknik

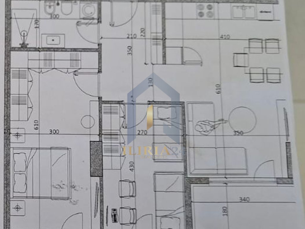
📐 SipĂ«rfaqe
‱SipĂ«rfaqe ndĂ«rtimi: 79.68 mÂČ
‱SipĂ«rfaqe e pĂ«rbashkĂ«t: 11.62 mÂČ
‱SipĂ«rfaqe totale: 91.30 mÂČ

✹ Karakteristika
‱Organizim funksional 2+1
‱Ndodhet nĂ« njĂ« rezidencĂ« moderne dhe tĂ« mirĂ«administruar
‱Ambient i pĂ«rshtatshĂ«m pĂ«r banim familjar ose investim
‱Ndriçim dhe hapĂ«sira tĂ« mirĂ«organizuara

PĂ«r tĂ« caktuar njĂ« vizitĂ« nĂ« pronĂ«, ju lutemi kontaktoni AgjencinĂ« Imobiliare Iliria’24 nĂ« numrin e mĂ«poshtĂ«m tĂ« telefonit:
📞 +355686009030

Stafi ynë do të jetë në dispozicion për t'ju ofruar të gjitha informacionet e nevojshme dhe për të koordinuar orarin e vizitës sipas disponueshmërisë suaj.
Faleminderit për besimin dhe bashkëpunimin.

Detajet e Pronës

Referenca: INV1752
Dhomë Gjumi: 2
Adresa: Rruga "Pekini"
Tualet: 1
Cmimi: 73,000 €
Zona: Instituti Bujqesor
Sip. Totale:: 91 m2
Website Views: 157