Përshkrimi i Pronës

Apartament 3+1 për shitje në Paskuqan

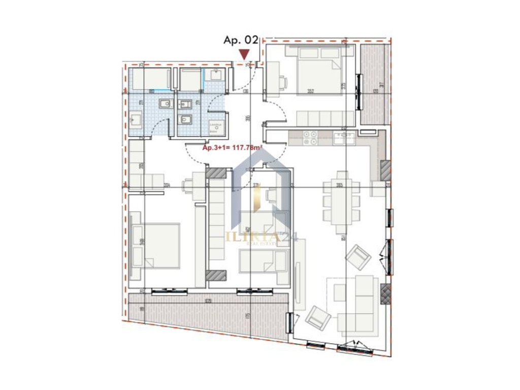
Shitet apartament i bollshëm 3+1 në zonën e preferuar të Paskuqanit, i përshtatshëm për familje që kërkojnë hapësirë, rehati dhe një investim me vlerë.

Detajet e pronës:
• Sipërfaqe apartamenti: 117.78 m²
• Sipërfaqe e përbashkët: 18.26 m²
• Sipërfaqe totale: 136.04 m²

Apartamenti karakterizohet nga organizim i rregullt i ambienteve, ndriçim natyral dhe hapësira të bollshme që ofrojnë komoditet maksimal për jetesë.

Çmimi: 1100€/m²

Ndodhet në një zonë në zhvillim të shpejtë, me akses të mirë drejt qytetit dhe pranë faciliteteve kryesore si shkolla, markete dhe transport publik.

Kontaktoni për më shumë informacion ose për të rezervuar një vizitë +355684129182

Detajet e Pronës

Referenca: INV2018
Dhomë Gjumi: 3
Adresa: "Paskuqan"
Tualet: 1
Cmimi: 149,650 €
Zona: Paskuqan
Sip. Totale:: 136 m2
Website Views: 106